



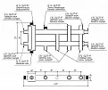
BMSS-40-4DU
Балансировочный коллектор
до 40 кВт, все контуры G ¾″, 4D-кронштейны K.UMS, подключение термодатчикаАртикул:BM 40A30 20
Основные характеристики
Материал исполнения:Нержавеющая сталь AISI 304
Количество контуров:
4
Магистральное присоединение:G ¾″ (НР)
Мощность максимальная, кВт:
40
Максимальная подача, м³/ч:
1.7
Логистические параметры
Масса брутто, кг:4,2
Размеры упаковки, (Д x Ш х В), мм:600 x 260 x 72
Объем упаковки, м³:0.01123
Описание
Нержавеющая гидрострелка на 4 контура для настенного котла (балансировочный коллектор в конфигурации 2+1+1) предназначена для энергоэффективной гидрообвязки котельной двухэтажного частного дома до 250 м² .
① Почему BMSS-40-4DU очищает теплоноситель от воздуха и шлама лучше всех аналогов?
Встроенный нержавеющий сепаратор в виде поперечной полноразмерной перфорированной пластины:
- За счет завихрения потока самого воздухо-насыщенного теплоносителя из подающей линии котла, обеспечит эффективное всплытие пузырьков воздуха с последующим их отведением через верхний штуцер гидрострелки и подключенного к нему автоматического воздухоотводчика.
- За счет завихрения самого загрязненного шламом потока теплоносителя из обратной линии системы осаждает механические примеси в отстойнике гидрострелки с последующем их выведением через подключенный дренажный кран.
- Так же сепаратор препятствует пробиванию котловым насосом бокового контура реактивной струей, что часто вызывает паразитный поток отключенного автоматикой бокового контура.
② Как гидрострелка на 4 контура из нержавейки повышает надежность всей системы?
- Нержавеющая сталь AISI 304 (08Х18Н10) прослужит век !
- Кронштейны с регулировкой 4 параметров в комплекте позволяют отрегулировать вылет трубной обвязки таким образом, чтобы он оказалось в одной плоскости, что существенно снижает кол-во соединений, экономит фитинги и трубы, а так же работу мастера.
③ Варианты компоновок котельной с BMSS-40-4D и их ограничения.
- Коллектор с гидрострелкой имеет 4 контура на ¾ дюйма с межосевым расстоянием 90 мм.
- Подключение котла может осуществляться как справа так и слева.
- Для изменения порядка подающих линий вертикальных потребителей нужно перевернуть коллектор на 180 градусов по горизонтальной оси.
- Для настенного котла с подачей выше 1.7 м³/ч - заказывайте модель с размерами подключений G 1″: BMSS-60-5DU.EPP .
- Если Вам удобней подвести контуры с одной стороны - заказывайте модель BMSS-40-4D в конфигурации 3+1 .
- Если Вы хотите использовать схему со встроенным между коллектором и гидрострелкой грязевиком и/или резервным электрокотлом без насоса (работающего в дежурном режиме за счет циркуляции насосов-потребителей), используйте отдельно гидрострелку GRSS-40-20 и коллектор отопления на 3+1 контура MKSS-40-4D
④ Как установить гидрострелку на 4 контура в двухэтажном доме?
- Радиаторы 1 этажа подключаются к нижнему контуру через насосную группу NGSS-20 с котловой температурой (рекомендуем коллекторную систему).
- Коллектор теплого пола 1 этажа подключается к нижнему контуру через насосную группу NGSS-20СTS с ручной регулировкой температуры 20-43°С .
- Радиаторы пристроя подключаются к нижнему контуру через насосную группу NGSS-20СTS с ручной регулировкой температуры 35-60°С .
- Баня или гараж подключаются к боковому контуру через насосную группу NGSS-20СTS с ручной регулировкой температуры 35-60°С .
Совместимые комплекты
Универсальные спецификации
Все характеристики
Основные характеристики
Материал исполнения:
Нержавеющая сталь AISI 304
Количество контуров:
4
Максимальная подача, м³/ч:
1.7
Мощность максимальная, кВт:
40
Максимальная отапливаемая площадь, м²:
250
Магистральное присоединение:
G ¾″ (НР)
Подключения потребителей:
G ¾″ (НР)
Доп. присоединение:
Rp ½″ (ВР)
Межосевое расстояние, мм:
90
Вылет от стены, мм:
50-65
Логистические параметры
Размеры упаковки, (Д x Ш х В), мм:
72 x 600 x 260
Объем упаковки, м³:
0.01123
Длина, мм:
600
Ширина, мм:
260
Высота, мм:
72
Все преимущества

Нержавеющая сталь 08Х18Н10 (AISI 304) это срок службы более 50 лет + 12 лет гарантии!
Сталь 08Х18Н10 (AISI 304) это качественная аустенитная нержавеющая сталь которая является кислотостойкой и выдерживает до 900°С, а в системе отопления прослужит более 50 лет!
Отличить качественную нержавейку AISI 304 от дешевых аналогов, подверженных коррозии AISI 430 ("ферритка"), AISI 201 (Eco), прикладывать магнит следует на плоские части корпуса, т.к. на сварочных швах и изгибах наблюдаются магнитные аномалии.
Подробнее 
Соосная компоновка изделий упростит разметку и ускорит монтаж!
- Удобный процесс разметки с помощью лазера!
- Быстрый монтаж!
- Экономия пространства котельной!

Эксклюзивная комбинированная полировка нержавеющей стали
- Матовый корпус позволяет снизить вероятность появления царапин в процессе монтажа и жирных следов.
- Резьбы и торцы с зеркальной поверхностью дополняют серебряным блеском.

Монтажная система с регулировкой положения повысит надежность, снизив кол-во трубных соединений (в комплекте поставки)
- Регулировка вылета оси трубопроводов от стены для исключении лишних соединений подводки.
- Выравнивание изделия вертикально в боковой плоскости даже на неровной стене.
- Точное вертикальное позиционирование по размеченной оси трубопровода на стене даже при смещении бура в пустотелом кирпиче.
- Выставление изделия в горизонте или по проектному уклону.

Универсальное подключение термодатчика для автоматики
Для большинства современных многоконтурных отопительных котлов с широким диапазоном модуляцией горелки и насоса требуется расположение температурного датчика в потоке магистральной подающей линии сразу после гидрострелки.
Для этого на корпусе подающего коллектора расположено подключение Rp ½″ для ввинчивания латунной гильзы куда и погружается термо-датчик, при этом низковольтный провод выходит наверх, что намного надежней и безопасней любого бокового подключения.
Подробнее Для этого на корпусе подающего коллектора расположено подключение Rp ½″ для ввинчивания латунной гильзы куда и погружается термо-датчик, при этом низковольтный провод выходит наверх, что намного надежней и безопасней любого бокового подключения.

Сверхкомпактная и экономная обвязка ¾’’ снизит затраты на фитинги и запорную арматуру!
Для объектов S < 250 м2 можно существенно сэкономить место и стоимость системы за счет замены кранов, клапанов, фитингов с размера 1" на ¾".
Подробнее 
Встроенный нержавеющий сепаратор повышает эффективность дегазации и дешламации теплоносителя
- Встроенный нержавеющий сепаратор продлевает срок службы дорогих элементов системы (котлов, насосов, отопительных приборов) за счет эффективной очистки теплоносителя от воздуха от шлама.
- Сепаратор из нержавейки никогда не "зарастет"!
- Конструкция сепаратора GIDRUSS исключит проброс теплоносителя в выключенные контуры, что свойственно пустотелым конструкциям дешевых конкурентов.
Документация
Скачать всю документацию
Применение в схемах
Наличие у дилеров 53
Организовать поставку через другого дилера

пн-пт: 08:00-18:00
Заказать по договору с ООО "Лунда" (с НДС) по коду м8321
Для проверки наличия - выбирайте Ваш город на сайте lunda.ru
Позвонить в офис
+7 (***) ***-**-**
Наличие: 2 шт.

45.083289, 39.014350
Купить в сети ЭКВАТОР г. Краснодар
г. Краснодар, ул. Российская, 253 (и еще 13 магазинов)
Позвонить в офис
+7 (***) ***-**-**
Наличие: 2 шт.

пн-пт: 08:00-18:00 сб 09:00-15:00
Купить в Казани из наличия с бесплатной доставкой по Татарстану у Лунды
г. Казань, ул. Оренбургский тракт, 160 К2
Позвонить менеджеру
+7 (***) ***-**-**
Позвонить в офис
+7 (***) ***-**-**
Наличие: 2 шт.

пн-пт: 08:00-18:00
Купить в г. Ростов-на-Дону из наличия с бесплатной доставкой у Лунды
г. Ростов-на-Дону, 1-й км а/д 60К-9, 7/10
Позвонить менеджеру
+7 (***) ***-**-**
Позвонить в офис
+7 (***) ***-**-**
Наличие: 2 шт.

пн-пт: 08:00-18:00
Купить в г. Петрозаводск из наличия у Лунды
г. Петрозаводск, ул. Муезерская, 15 А
Позвонить в офис
+7 (***) ***-**-**
Наличие: 2 шт.

пн-пт: 08:00-18:00
Купить в г.Нижний Новгород из наличия у Лунды
г. Нижний Новгород, ул. Кащенко, 4Б
Позвонить в офис
+7 (***) ***-**-**
Наличие: 2 шт.

пн-пт: 08:00-18:00
Купить в г. Тула из наличия у Лунды
г. Тула, ул. Рязанская, 46
Позвонить в офис
+7 (***) ***-**-**
Наличие: 2 шт.

пн-пт: 08:00-18:00
Купить в г. Брянск из наличия у Лунды
г. Брянск, ул. Литейная, 3
Позвонить в офис
+7 (***) ***-**-**
Наличие: 2 шт.

пн-пт: 08:00-18:00
Купить в г. Сочи из наличия у Лунды
г. Сочи, ул. Водораздельная, 5 С1
Позвонить в офис
+7 (***) ***-**-**
Наличие: 2 шт.

пн-пт: 08:00-18:00
Купить в г. Краснодар из наличия у Лунды
г. Краснодар, ул. Лизы Чайкиной, 15 С3
Позвонить в офис
+7 (***) ***-**-**
Наличие: 2 шт.

пн-пт: 08:00-18:00
Купить в г. Великий Новгород из наличия у Лунды
г. Великий Новгород, ул. Большая Санкт-Петербургская, 82А
Позвонить в офис
+7 (***) ***-**-**
Наличие: 2 шт.

пн-пт: 08:00-18:00
Купить в г. Новороссийск из наличия у Лунды
г. Новороссийск, Приморский р-н, с. Цемдолина, ул. Ленина, 6В
Позвонить в офис
+7 (***) ***-**-**
Наличие: 2 шт.

пн-пт: 08:00-18:00
Купить в Набережных Челнах из наличия у Лунды
г. Набережные Челны, ул. Старосармановская, 29 А
Позвонить в офис
+7 (***) ***-**-**
Наличие: 2 шт.

пн-пт: 08:00-18:00
Купить в г. Чебоксары из наличия у Лунды
г. Чебоксары, проезд Машиностроителей, 1 Ч, оф. бокс 10
Позвонить в офис
+7 (***) ***-**-**
Наличие: 2 шт.

пн-пт: 08:00-18:00
Купить в г. Рязань из наличия у Лунды
г. Рязань, проезд Яблочкова, 6 С1
Позвонить в офис
+7 (***) ***-**-**
Наличие: 2 шт.

пн-пт: 08:00-18:00
Купить в г. Липецк из наличия у Лунды
г. Липецк, ул. Гагарина, 69
Позвонить в офис
+7 (***) ***-**-**
Наличие: 2 шт.

пн-пт: 08:00-18:00
Купить в г. Белгород из наличия у Лунды
г. Белгород, ул. Корочанская, 132 Д
Позвонить в офис
+7 (***) ***-**-**
Наличие: 2 шт.

пн-пт: 08:00-18:00
Купить в г. Волгоград из наличия у Лунды
г. Волгоград, ул. Качинцев, 82 Б
Позвонить в офис
+7 (***) ***-**-**
Наличие: 2 шт.

пн-пт: 08:00-18:00
Купить в г. Пенза из наличия у Лунды
г. Пенза, ул. Светлая, 50 Б
Позвонить в офис
+7 (***) ***-**-**
Наличие: 2 шт.

пн-пт: 08:00-18:00
Купить в г. Саранск из наличия у Лунды
г. Саранск, ул. Строительная, 32 В
Позвонить в офис
+7 (***) ***-**-**
Наличие: 2 шт.

пн-пт: 08:00-18:00
Купить в Самаре из наличия у Лунды
г. Саратов, ул. С.Ф.Тархова, 27 А
Позвонить в офис
+7 (***) ***-**-**
Наличие: 2 шт.

пн-пт: 08:00-18:00
Купить в г. Орёл из наличия у Лунды
г. Орёл, ул. Цветаева, 1М
Позвонить в офис
+7 (***) ***-**-**
Наличие: 2 шт.

пн-пт: 08:00-18:00
Купить в г. Смоленск из наличия у Лунды
г. Смоленск, пр. Трамвайный, 6 А
Позвонить в офис
+7 (***) ***-**-**
Наличие: 2 шт.

пн-пт: 08:00-18:00
Купить в Сочи (Адлер) из наличия у Лунды
г. Адлер, ул. Энергетиков, 7 Б
Позвонить в офис
+7 (***) ***-**-**
Наличие: 2 шт.

пн-пт: 08:00-18:00
Купить в г. Сестрорецк из наличия у Лунды
г. Сестрорецк, Приморское шоссе, 260 А
Позвонить в офис
+7 (***) ***-**-**
Наличие: 2 шт.

пн-пт: 08:00-18:00
Купить в г. Уфа из наличия у Лунды
г. Уфа, ул. Баязита Бикбая, 2/2
Позвонить в офис
+7 (***) ***-**-**
Наличие: 2 шт.

пн-пт 09:00-18:00
Купить в Челябинске из наличия у Лунды
г. Челябинск, ул. Каслинская, 5
Позвонить в офис
+7 (***) ***-**-**
Наличие: 2 шт.

пн-пт: 08:00-18:00
Купить в Калуге наличия у Лунды
г. Калуга, ул. Болдина, 77 К2
Позвонить в офис
+7 (***) ***-**-**
Наличие: 2 шт.

пн-пт: 08:00-18:00
Купить в г. Воронеж из наличия у Лунды
г. Воронеж, ул. Планетная, 26
Позвонить в офис
+7 (***) ***-**-**
Наличие: 2 шт.

пн-пт: 08:00-18:00
Купить в Обнинске из наличия у Лунды
г. Обнинск, ул. Циолковского, 8
Позвонить в офис
+7 (***) ***-**-**
Наличие: 2 шт.

пн-пт: 08:00-18:00
Купить из наличия на Варшавском шоссе г. Москва - Северное Бутово
г. Москва, ул. Старобитцевская, 5 С2, офис 3
Позвонить в офис
+7 (***) ***-**-**
Наличие: 2 шт.

пн-пт: 08:00-18:00
Купить из наличия на Каширском шоссе г. Москва
г. Москва, ул. Котляковская, 5
Позвонить в офис
+7 (***) ***-**-**
Наличие: 2 шт.

пн-пт: 08:00-18:00 +7 (495) 661-60-60
Купить из наличия на Боровском шоссе г. Москва (м. Озерная), Солнцево, Новопеределкино
г. Москва, ул. Наташи Ковшовой, 14 С2
Позвонить в офис
+7 (***) ***-**-**
Наличие: 2 шт.

пн-пт: 08:00-18:00
Купить из наличия на Ленинградском шоссе г. Москва - Химки
г. Москва, ул. Правобережная, 1 Б
Позвонить в офис
+7 (***) ***-**-**
Наличие: 2 шт.

пн-пт: 08:00-18:00
Купить из наличия на Рязанском проспекте г. Москва
г. Москва, проезд Сормовский, 11/7
Позвонить в офис
+7 (***) ***-**-**
Наличие: 2 шт.

пн-пт: 08:00-18:00
Купить из наличия на Волоколамском шоссе г. Москва р-н Тушино
г. Москва, ул. Вишнёвая, 9к1
Позвонить в офис
+7 (***) ***-**-**
Наличие: 2 шт.

пн-пт: 08:00-18:00
Купить из наличия на Киевском шоссе г. Москва, Обнинск, Белоусово
г. Обнинск, ул. Циолковского, 8
Позвонить в офис
+7 (***) ***-**-**
Наличие: 2 шт.

пн-пт: 08:00-18:00
Купить из наличия на Дмитровском шоссе г. Москва Догопрудный, Шереметьево, Грибки
д. Грибки, ул. Адмиральская, 4с1
Позвонить в офис
+7 (***) ***-**-**
Наличие: 2 шт.

пн-пт: 08:00-18:00
Купить из наличия на Можайском шоссе г. Москва, Большие и Малые Вязёмы, Краснознаменск
д. Малые Вязёмы, Петровский проезд, 2с2
Позвонить в офис
+7 (***) ***-**-**
Наличие: 2 шт.

пн-пт 08:30-17:30
В Кургане можно купить из наличия у САНТХЕРЕСУРСА
г. Курган, ул. Дзержинского, 62/3
Позвонить в офис
+7 (***) ***-**-**
Наличие: 1 шт.

09:00-18:00 (без выходных)
Из наличия в Приморском крае можно купить у АКВАДОМА с бесплатной доставкой по Владивостоку
г. Владивосток, пр. 100-лет Владивостоку, 26
Позвонить в офис
+7 (***) ***-**-**
Наличие: 1 шт.

09:00-18:00 (без выходных)
Из наличия в Приморском крае можно купить у АКВАДОМА с бесплатной доставкой по Владивостоку
г. Большой Камень, ул. Гагарина, 49
Позвонить в офис
+7 (***) ***-**-**
Наличие: 1 шт.

09:00-18:00 (без выходных)
Из наличия в Приморском крае можно купить у АКВАДОМА с бесплатной доставкой по Владивостоку
г. Партизанск, Переулок Бойкий, 2/1
Позвонить в офис
+7 (***) ***-**-**
Наличие: 1 шт.

пн-сб: 09:00-18.00 вс 10:00-17:00
Из наличия в Приморском крае можно купить у АКВАДОМА с бесплатной доставкой по Владивостоку
г. Владивосток, ул. Бородинская, 46/50 (ТЦ «Виктория», пав. 33)
Позвонить менеджеру
+7 (***) ***-**-**
Позвонить в офис
+7 (***) ***-**-**
Наличие: 1 шт.

пн-пт: 09:00-18:00 (без выходных)
Из наличия в Приморском крае можно купить у АКВАДОМА с бесплатной доставкой по Владивостоку
г. Владивосток, ул. Маковского, 36
Позвонить менеджеру
+7 (***) ***-**-**
Позвонить в офис
+7 (***) ***-**-**
Наличие: 1 шт.

пн-сб: 09:00-18:00 вс: 10:00-17:00
Из наличия в Приморском крае можно купить у АКВАДОМА с бесплатной доставкой по Владивостоку
г. Артем, ул. 1-я Рабочая, 16 (ТЦ «Регион», пав. 8)
Позвонить в офис
+7 (***) ***-**-**
Наличие: 1 шт.

09:00-18:00 (без выходных)
Из наличия в Приморском крае можно купить у АКВАДОМА с бесплатной доставкой по Владивостоку
г. Артем, ул. 1-я Рабочая, 44А
Позвонить в офис
+7 (***) ***-**-**
Наличие: 1 шт.

09:00-18:00 (без выходных)
Из наличия в Приморском крае можно купить у АКВАДОМА с бесплатной доставкой по Владивостоку
г. Уссурийск, ул.Советская, 96
Позвонить в офис
+7 (***) ***-**-**
Наличие: 1 шт.

09:00-18:00 (без выходных)
Из наличия в Приморском крае можно купить у АКВАДОМА с бесплатной доставкой по Владивостоку
г. Уссурийск, ул. Комсомольская, 91
Позвонить в офис
+7 (***) ***-**-**
Наличие: 1 шт.

09:00-18:00 (без выходных)
Из наличия в Приморском крае можно купить у АКВАДОМА с бесплатной доставкой по Владивостоку
г. Находка, ул. Шоссейная, 94Д (ТЦ «Удача»)
Позвонить менеджеру
+7 (***) ***-**-**
Позвонить в офис
+7 (***) ***-**-**
Наличие: 1 шт.

09:00-18:00 (без выходных)
Из наличия в Приморском крае можно купить у АКВАДОМА с бесплатной доставкой по Владивостоку
г. Спасск-Дальний, ул. Советская, 106/1
Позвонить в офис
+7 (***) ***-**-**
Наличие: 1 шт.

09:00-18:00 (без выходных)
Из наличия в Приморском крае можно купить у АКВАДОМА с бесплатной доставкой по Владивостоку
г. Арсеньев, ул. Октябрьская, 37
Позвонить в офис
+7 (***) ***-**-**
Наличие: 1 шт.

Купить из наличия в Самаре
г. Саратов, ул. Усть-Курдюмская, 1
Позвонить в офис
+7 (***) ***-**-**
Наличие: 1 шт.

09:00-18:00 (без выходных)
Заказать с бесплатной доставкой в г. Владивосток через Аквадом
г. Владивосток, ул. Ильичева, 6
Позвонить менеджеру
+7 (***) ***-**-**
Позвонить в офис
+7 (***) ***-**-**

пн-пт 09:00-18.00
Купить в Екатеринбурге у СТИМЭК из наличия
г. Екатеринбург, ул. Черняховского, д. 86, корпус 6, 1 этаж
Позвонить в офис
+7 (***) ***-**-**

пн-пт 09:00-18.00
Купить в Тюмени через СТИМЭК с доставкой за 2-3 дня
г. Тюмень, ул.Авторемонтная д. 1, база Радуга, склад 1, 1 этаж
Позвонить в офис
+7 (***) ***-**-**

пн-пт 09:00-18.00
Купить в Челябинске у СТИМЭК с доставкой 2-3 дня
г. Челябинск, п.Шершни, ул. Центральная 3Б, корпус 1
Позвонить менеджеру
+7 (***) ***-**-**
Позвонить в офис
+7 (***) ***-**-**

пн-пт 09:00-18.00
Купить в Перми у СТИМЭК с доставкой 2-3 дня
г. Пермь, ул. Героев Хасана 46 литера Ф, оф. 232
Позвонить в офис
+7 (***) ***-**-**

Купить Иркутской области: Иркутск, Ангарск, Усть-Илимске, Братск через ТЕПЛОВОЗ с бесплатной доставкой
г. Иркутск, ул. Байкальская, 277Б
Позвонить в офис
+7 (***) ***-**-**

пн-сб 9:00-18:00
Заказать в Тереме с бесплатной доставкой до г. Москва (ЦКАД: Климовск, Подольске, Александровка)
11 точек продаж по Москве
Позвонить в офис
+7 (***) ***-**-**

пн-пт 09:00-19:00 сб 10:00-17:00
Заказать в ЭТМ через iPro с отсрочкой платежа и бесплатной доставкой по г. Псков, Великие Луки и др. городах Псковской области
г. Псков, пр. Рижский, 94 В
Позвонить в офис
+7 (***) ***-**-**

Заказать у Лунды с бесплатной доставкой в г. Вологда
г. Вологда (хоум офис)
Позвонить в офис
+7 (***) ***-**-**

пн-пт 08:00-17:30
Заказать в ЭТМ - iPro с отсрочкой платежа и бесплатной доставкой в г. Санкт-Петербург (СПб) и Ленинградской области
г. Санкт-Петербург, ул. Заозерная, д.14В
Позвонить менеджеру
+7 (***) ***-**-**
Позвонить в офис
+7 (***) ***-**-**

пн-пт 08:30-18:30
Заказать в ЭТМ через iPro с отсрочкой платежа и бесплатной доставкой по г. Воронеж
г. Воронеж, пр.Труда, 111
Позвонить в офис
+7 (***) ***-**-**

пн-пт 09:00-19:00
Заказать в ЭТМ через iPro с отсрочкой платежа по г. Екатеринбург, Арамиль, Верхняя Пышма (доставка =190 р.)
г. Екатеринбург, пер.Базовый, 47 (и еще 6 филиалов)
Позвонить менеджеру
+7 (***) ***-**-**
Позвонить в офис
+7 (***) ***-**-**

пн-пт 09:00-19:00
Заказать в ЭТМ через iPro с отсрочкой платежа и бесплатной доставкой по г. Жуковский
г. Жуковский, ул. Гагарина, 85
Позвонить в офис
+7 (***) ***-**-**

пн-пт 09:00-19:00 сб 09:00-16:00
Заказать в ЭТМ через iPro с отсрочкой платежа и бесплатной доставкой по г. Казань (Татарстан)
5 филиалов в г. Казань: [1] ул.Бухарская, 89 [2] ул.Сибирский Тракт, 34Л [3] пр.Ямашева, 95 [4] ул.Краснококшайская, 119 [5] пос. Новониколаевский, промплощадка №1, 1/1
Позвонить в офис
+7 (***) ***-**-**

пн-пт 09:00-18:00 cб 09:00-16:00
Заказать в ЭТМ через iPro с отсрочкой платежа и бесплатной доставкой по г. Курган
г. Курган, ул. Омская, 131 С1
Позвонить в офис
+7 (***) ***-**-**

пн-пт 09:00-19:00
Заказать в ЭТМ через iPro с отсрочкой платежа и бесплатной доставкой по г. Малоярославец, Обнинск (Калужская область)
Калужская обл., Малоярославский р-н, с. Маклино, Промзона Меньшовка-1
Позвонить в офис
+7 (***) ***-**-**

пн-пт 09:00-19:00
Заказать в ЭТМ через iPro с отсрочкой платежа и бесплатной доставкой по г. Новосибирск
5 офисов продаж по Новосибирску: [1] Пашинское шоссе, 1 К1 [2] ул. Оловозаводская, 20 К1 [3] ул. Семьи Шамшиных, 64 [4] ул. Зыряновская, 61 [5] ул. Титова, 9
Позвонить в офис
+7 (***) ***-**-**

пн-пт 08:00-18:00
Заказать в ЭТМ через iPro с отсрочкой платежа и бесплатной доставкой по г. Пенза
2 филиалов в г.Пенза: [1] ул. Аустрина, 63 К5 [2] пр. Победы, 33
Позвонить в офис
+7 (***) ***-**-**

пн-пт 09:00-19:00
Заказать в ЭТМ через iPro с отсрочкой платежа и бесплатной доставкой по г. Самара
4 филиала в г. Самара: [1] Самарcкая обл., Стройкерамика пгт., Пожарный проезд, д.1 [2] ул. Гаражная, 5 [3] ул. Главная, 23 [4] ул. Московское шоссе, 306
Позвонить в офис
+7 (***) ***-**-**

пн-пт 09:00-18:00
Заказать через iPro с бесплатной доставкой до г. Владивосток в течении 10 раб. дней под договору с ЭТМ
г. Владивосток, ул. Заречная, 35
Позвонить в офис
+7 (***) ***-**-**

пн-пт 08:00-17:30
Заказать в ЭТМ через iPro с отсрочкой платежа и бесплатной доставкой по г. Благовещенск
г. Благовещенск, Серышевский переулок, 5
Позвонить в офис
+7 (***) ***-**-**

пн-пт 09:00-19:00
Заказать в ЭТМ через iPro с отсрочкой платежа и бесплатной доставкой по г. Иркутск
г. Иркутск, ул. Старокузьмихинская, 71
Позвонить в офис
+7 (***) ***-**-**

пн-пт 09:00-19:00
Заказать в ЭТМ через iPro с отсрочкой платежа и бесплатной доставкой по г. Сургут, Новый Уренгой, Нижневартовск
г. Сургут, ул. Комплектовочная, 5
Позвонить в офис
+7 (***) ***-**-**

пн-пт 09:00-18:00
Заказать в ЭТМ через iPro с отсрочкой платежа и бесплатной доставкой по г. Сыктывкар, Ухта, Воркута, Печора, Усинск, Сосногорск
г. Сыктывкар, ул. Пушкина, 63
Позвонить в офис
+7 (***) ***-**-**

пн-пт 09:00-19:00
Заказать в ЭТМ через iPro с отсрочкой платежа и бесплатной доставкой по г. Хабаровск
г. Хабаровск, ул. Краснодарская, 102Б
Позвонить в офис
+7 (***) ***-**-**

пн-пт 09:00-19:00
Заказать в ЭТМ через iPro с отсрочкой платежа и доставкой по г. Ярославль, Рыбинск, Тутаев, Переславль-Залесский
г. Ярославль, пр. Октября, 89/1
Позвонить в офис
+7 (***) ***-**-**

пн-пт 09:00-18:00 сб 09:00-15:00
Заказать в ЭТМ через iPro с отсрочкой платежа и бесплатной доставкой по г. Красноярск
г. Красноярск, ул. Дудинская, 16 С3
Позвонить в офис
+7 (***) ***-**-**
Заказать с бесплатной доставкой до г. СПб в течении 10 раб. дней
г. Санкт-Петербург, ул. Киевская, 5Т
Позвонить менеджеру
+7 (***) ***-**-**
Позвонить в офис
+7 (***) ***-**-**

пн-пт 09:00-18:00 сб.09:00-16:00
Заказать в ЭТМ через iPro и бесплатной доставкой до г. Стерлитамак, Ишимбай, Салават, Мелеуз, Кумертау
г. Стерлитамак, ул. Вокзальная, 9А, лит. Е
Позвонить в офис
+7 (***) ***-**-**

пн-пт 09:00-19:00
Заказать в ЭТМ через iPro с бесплатной доставкой до г. Москва, ул. Мнёвники, 10К1
6 филиалов в г. Москва + 6 за МКАД
Позвонить в офис
+7 (***) ***-**-**

пн-пт 09:00-19:30 сб 09:00-16:00
Заказать в ЭТМ через iPro с отсрочкой платежа и бесплатной доставкой по г. Химки
г. Химки, пр. Мельникова, 32А
Позвонить в офис
+7 (***) ***-**-**

пн-пт 06:00-23:59
Заказать в ЭТМ через iPro с отсрочкой платежа и бесплатной доставкой по г. Самара
г. Санкт-Петербург, п. Шушары, Ленсоветовская дорога, 12 К2 литера Б
Позвонить в офис
+7 (***) ***-**-**

пн-пт 09:00-18:00 сб 09:00-17:00
Заказать в ЭТМ через iPro с отсрочкой платежа и бесплатной доставкой по г. Омск
г. Омск, пр. Мира, 71/3
Позвонить в офис
+7 (***) ***-**-**

пн-пт 09:00-19:00 сб 10:00-16:00
Заказать в ЭТМ через iPro с отсрочкой платежа по г. Пермь
г. Пермь, ул. Героев Хасана, 100 (и еще 4 филиала)
Позвонить в офис
+7 (***) ***-**-**

пн-пт 08:30-17:30 сб 08:30-15:30
Заказать в ЭТМ через iPro с отсрочкой платежа и бесплатной доставкой по г. Ставрополь
г. Ставрополь, ул. Доваторцев, 60
Позвонить менеджеру
+7 (***) ***-**-**
Позвонить в офис
+7 (***) ***-**-**

пн-пт 09:00-19:00 сб 09:00-16:00
Заказать в ЭТМ через iPro с отсрочкой платежа и бесплатной доставкой по г. Ростов-на-Дону
г. Ростов-на-Дону, ул. Вересаева, 103В, 1 секция
Позвонить менеджеру
+7 (***) ***-**-**
Позвонить в офис
+7 (***) ***-**-**












