


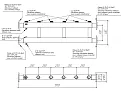
MK-400-3x50
Модульный коллектор
до 400 кВт, 2 магистр. подкл. Фл.Ду65, 3 контура G 2″ вверх или внизОсновные характеристики
Логистические параметры
Применяется в автономных котельных для обвязки 3 потребителей или котлов до 200 кВт каждый в единую магистраль Ду 65.
Корпус коллектора отопления dn65 выполнен из конструкционной стали 09Г2С со сроком службы 15 лет с гарантией до 7 лет, если хотите продлить срок службы до 50 лет с гарантией до 12 лет - заказывайте нержавеющий аналог MKSS-400-3x50 , это особенно важно для систем с полипропиленовыми трубопроводами в которых наблюдается усиленная коррозия из-за отсутствия кислородного барьера!
🔌 Как подключить коллектор к системе отопления?
- Для корректного подключения группы потребителей к одному или нескольким котлам - используйте гидравлический разделитель GR-400-65 *.
- Для расширения функционала системы можно последовательно соединять друг с другом модульные коллекторы dn65 серии MK-400 *.
- Для подключения потребителей, в зависимости от типоразмера насоса используйте соответствующие насосные группы: dn40 , dn50 .
* Для продления срока службы и сохранение гарантии соединения фланцевых изделий MK, GR (в любом сочетании) необходимо осуществлять через сильфонные или резиновые компенсаторы (гибкие вставки из EPDM)
Основные характеристики
Логистические параметры

- Удобный процесс разметки с помощью лазера!
- Быстрый монтаж!
- Экономия пространства котельной!

- Совместимость с устаревшим ГОСТ 12820-80 с обозначениями "1-...-10" для 10 бар и "1-...-16" для 16 бар.
- Универсальная X-образная ориентация отверстий фланца.
- Все фланцевые изделия (GR, MK) подходят друг к другу не зависимо от даты производства!

- Широкий температурный диапазон применения от -70 до 475˚С с сохранением характеристик прочности, пластичности и химостойкости
- Высокая коррозионная стойкость стали 09Г2С по сравнению с обычно сталью 3 (дешевая профильная труба) и сталью 20 (шовная ВГП-труба) существенно продлит срок службы изделий.
- Низкий показатель отпускной хрупкости позволит получить после сварки абсолютно однородное изделие, более устойчивое к рабочим и аварийным колебаниям температуры и давления
- Содержание марганца и кремния в 09Г2С способствуют удалению кислорода из металла
P.S. Как отличить изделие из 09Г2С от обычных разнородных металлов ст. 3 и ст. 20?
- По наличию шва на внутренней стороне резьбового патрубка: если виден или прощупывается шов значит перед Вами некачественное изделие.
- Повышенная толщина корпуса в 3 мм и больший радиус изгиба профиля т.к. 09Г2С гнется сложнее чем Ст.20 или Ст.3, т.е. если перед Вами изделие с острой кромкой изгиба профильной трубы это не 09Г2С.
- Сравнение с продукцией GIDRUSS сходной модели на вес - если изделие конкурента намного легче, это значит, что толщина стенки профильной трубы менее 2 мм и оно точно не из 09Г2С!

- Точная регулировка вертикального положения и высоты коллектора без самого коллектора!
- Коллектор устанавливается уже на полностью отрегулированный ложемент!
- Презентабельный внешний вид.
- Возможность дополнительного крепления к полу с момощью шпилек М10 и забиваемых резьбовых анкеров.

- Позволяет подключать мощные потребители, такие как теплообменники для подогрева бассейнов и вентиляции.
- Возможность гармоничного расширения системы при добавлении отопительных контуров с помощью дополнительных секций модульных коллекторов MKSS.

На изделиях GIDRUSS не остается марких следов даже в случае неаккуратного монтажа!
Наличие у дилеров 40














































































