


MK-600-3x50
Модульный коллектор
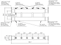
до 600 кВт, 2 магистр. подкл. Фл.Ду80, 3 контура G 2″ вверх или внизОсновные характеристики
Модульный коллектор отопления MK-600-3x50 используется в автономных котельных и ИТП с независимым подключением для распределения теплоносителя из магистрали DN80 (фл. 1-80-10) на 3 потребителя DN50 (G 2").
Для подключения потребителей к коллектору используйте используйте насосные группы DN50 .
Для подключения группы потребителей используйте к котловому контуру используйте гидравлический разделитель GR-600-80 .
Модульные коллекторы серии MK-600 можно последовательно соединять друг с другом.
Коллектор MK-600-3x50 можно использовать для обвязки двух котлов, получив следующие конфигурации:
- 600 кВт соединив 3 котла по 200 кВт;
- 510 кВт соединив 3 котла по 170 кВт;
- 480 кВт соединив 3 котла по 160 кВт;
- 450 кВт соединив 3 котла по 150 кВт.
Для удобства закупки воспользуйтесь универсальным комплектом KIT.DN80 , уточнив количество насосных групп и выбрав конфигурации коллекторов.
Основные характеристики

- Удобный процесс разметки с помощью лазера!
- Быстрый монтаж!
- Экономия пространства котельной!

- Совместимость с устаревшим ГОСТ 12820-80 с обозначениями "1-...-10" для 10 бар и "1-...-16" для 16 бар.
- Универсальная X-образная ориентация отверстий фланца.
- Все фланцевые изделия (GR, MK) подходят друг к другу не зависимо от даты производства!

- Широкий температурный диапазон применения от -70 до 475˚С с сохранением характеристик прочности, пластичности и химостойкости
- Высокая коррозионная стойкость стали 09Г2С по сравнению с обычно сталью 3 (дешевая профильная труба) и сталью 20 (шовная ВГП-труба) существенно продлит срок службы изделий.
- Низкий показатель отпускной хрупкости позволит получить после сварки абсолютно однородное изделие, более устойчивое к рабочим и аварийным колебаниям температуры и давления
- Содержание марганца и кремния в 09Г2С способствуют удалению кислорода из металла
P.S. Как отличить изделие из 09Г2С от обычных разнородных металлов ст. 3 и ст. 20?
- По наличию шва на внутренней стороне резьбового патрубка: если виден или прощупывается шов значит перед Вами некачественное изделие.
- Повышенная толщина корпуса в 3 мм и больший радиус изгиба профиля т.к. 09Г2С гнется сложнее чем Ст.20 или Ст.3, т.е. если перед Вами изделие с острой кромкой изгиба профильной трубы это не 09Г2С.
- Сравнение с продукцией GIDRUSS сходной модели на вес - если изделие конкурента намного легче, это значит, что толщина стенки профильной трубы менее 2 мм и оно точно не из 09Г2С!

- Позволяет подключать мощные потребители, такие как теплообменники для подогрева бассейнов и вентиляции.
- Возможность гармоничного расширения системы при добавлении отопительных контуров с помощью дополнительных секций модульных коллекторов MKSS.

На изделиях GIDRUSS не остается марких следов даже в случае неаккуратного монтажа!
Наличие у дилеров 1












