
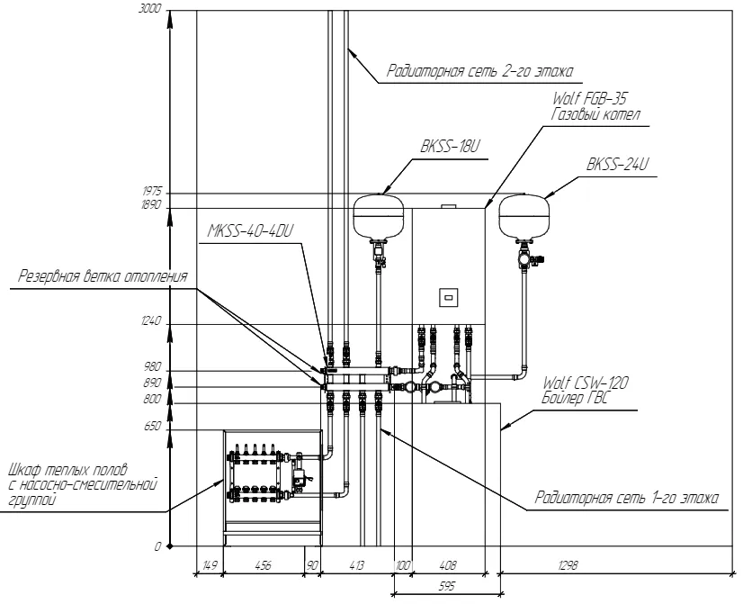
Схема отопления двухэтажного дома с настенным котлом без лишних циркуляционных насосов
Основные характеристики
Мощность, кВт:
До 40 кВт
Кол-во контуров:2-4
Магистральный диаметр:
G 3/4″
Описание
Схема отопления частного дома площадью до 250 кв.м настенным одноконтурным газовым котлом со встроенным частотным насосом + бойлер на прямую от котла.В предложенной компановке используется котел WOLF FGB 35 Описание потребителей: Радиаторы отопления могут быть организованы в несколько веток для удобства балансировки Теплые полы на базе насосно-смесительных узлов требующими подпора от котлового насоса Резервный торцевой контур Преимущества данного решения: Сверхнадежная нержавеющая система отопления с минимальным кол-вом соединений и воздухоотводчиков Компактность системы по монтажному пространству стены. Энергоэффективная обвязка за счет оптимально подобранного проходного сечения DN20 и габаритных размеров с межоссевым расстояникм 90 мм. Небольшой вылет от стены 50 мм позволит компактно расположить все элементы системы. Экономичное решение с минимальной стоимостью владения за счет типоразмера ¾″ (запорная арматура и фитинги в размере ¾″ вместо 1″ сэкономят значительные средства при первичной закупке и последующих сервисных заменах).
Совместимые типовые узлы
2
Описание
Схема отопления частного дома площадью до 250 кв.м настенным одноконтурным газовым котлом со встроенным частотным насосом + бойлер на прямую от котла.В предложенной компановке используется котел WOLF FGB 35
Описание потребителей:
- Радиаторы отопления могут быть организованы в несколько веток для удобства балансировки
- Теплые полы на базе насосно-смесительных узлов требующими подпора от котлового насоса
- Резервный торцевой контур
Преимущества данного решения:
- Сверхнадежная нержавеющая система отопления с минимальным кол-вом соединений и воздухоотводчиков
- Компактность системы по монтажному пространству стены.
- Энергоэффективная обвязка за счет оптимально подобранного проходного сечения DN20 и габаритных размеров с межоссевым расстояникм 90 мм.
- Небольшой вылет от стены 50 мм позволит компактно расположить все элементы системы.
- Экономичное решение с минимальной стоимостью владения за счет типоразмера ¾″ (запорная арматура и фитинги в размере ¾″ вместо 1″ сэкономят значительные средства при первичной закупке и последующих сервисных заменах).

