
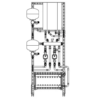
TU-DN20-TGR2-01 - Комплект обвязки гидрострелки на 2 контура 3/4 до 40 кВт
DN20 до 40 кВт
Основные характеристики
Количество котлов:1
Количество потребителей:
2
Мощность:до 40 кВт
98,494 ₽
Согласно конфигуратору| № | Фото | Наименование | Кол-во, шт. | Цена, ₽ | Сумма, ₽ |
|---|---|---|---|---|---|
| 1 | ![]() | TGRSS-40-20x2 (нерж., до 40 кВт, 2 контура G ¾″) Артикул:15 04002 20 | 1 | 16 200 | 16 200 |
| 2 | ![]() | NGSS-20 (нерж., ¾″, 90 мм, прямая группа) Артикул:NG 20A00 22 | 1 | 18 200 | 18 200 |
| 3 | ![]() | NGSS-20C (нерж., ¾″, 90 мм, поворотный смеситель Wester KVs 6.3) Артикул:NG 20A50 23 | 1 | 33 600 | 33 600 |
| 4 | ![]() | Сервопривод трехходового клапана трехточечный Wester WA-001 (S11 3P) Артикул:WA-001 | 1 | 13 490 | 13 490 |
| 5 | ![]() | Циркуляционный насос Shinhoo BASIC S 25-4 Артикул: 71211001 | 2 | 7 890 | 15 780 |
| 6 | ![]() | Автоматический воздухоотводчик Rp 1/2'' с обратным клапаном | 1 | 990 | 990 |
| 7 | ![]() | Кран шаровый латунный 1/2 НР-ВР никелированный (артикул 0107166) Артикул:0107166 | 1 | 234 | 234 |
Описание
Комплект оборудования предназначен для обвязки настенного газового или электрического котла с размещением непосредственно под котлом для экономии места.Данный узел можно разместить даже в кухонном шкафу.Узел можно устанавливать вертикально и горизонтально.
Потребители могут быть представлены радиаторной сетью с установкой температуры котловой автоматикой и теплыми полами, температура которых может регулироваться либо вручную - поворотом штока смесителя либо автоматически с помощью сервопривода, который может управляться контроллером связанным с GSM-модулем.
Характеристики комплекта
Количество котлов:
1
Количество потребителей:
2
Мощность:
до 40 кВт








