


Кольцевой коллектор для отопления на 2 контура RMSS-40-2
Кольцевой коллектор
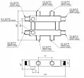
G ¾″, 90 ммОсновные характеристики
Кольцевой коллектор на 2 + 1 контура предназначен для обвязки систем отопления частных домов до 250 м² на базе настенных котла.
Если Вам нужно 4-5 потребителей 3/4 - заказывайте: RMSS-40-4 (dn20) или RMSS-60-R4-TW (dn25) .
⚠ Обвязка газового котла на первично-вторичных кольцах в наборе дешевле!
Заказывайте стандартные комплекты оборудования для небольшого дома со скидкой для заказчиков 10%:- EN-RM01 (для дома < 250 м² c одноконтурным котлом и отоплением от радиаторов и комфортными теплыми полами с возможностью установки автоматизации).
- EN-RM02 (для дома < 250 м² c одноконтурным котлом и отоплением 2 контурами теплых полов/стен/подоконников с возможностью установки автоматизации).
⚖ Кольцевой коллектор или гидрострелка?
Если Вы проводите ремонт отопления или полную реконструкцию котельной, то кольцевой коллектор лучшее решение, особенно когда в системе используется однотрубная система обвязки радиаторов, требующая повышенного расхода теплоносителя. Основной недостаток кольцевого коллектора это падение температуры от контура к контуру по направлению движения теплоносителя в кольце, что задает порядок подключения сначала высокотемпературных потребителей, а затем теплого пола, что в большинстве случаев потребует перехлеста трубопроводов и как следствие добавление лишних соединений и перерасхода трубы, поэтому при монтаже новых систем лучше использовать изделие лишенное этих недостатков: коллектор с гидрострелкой BMSS-40-3DU .
🧳 Как подключить настенный котел к кольцевому коллектору с двумя контурами?
- Котел можно подключать как слева так и справа.
- Котловую подачу можно подключать как к верхнему, так и к к нижнему патрубку.
- Коллектор можно устанавливать в любом пространственном положении даже вертикально под котлом, тогда потребители можно подводить слева и справа.
🔌 Особенности подключения кольцевого коллектора 3/4 к системе отопления.
- Радиаторы подключаются первыми по направлению движения теплоносителя в кольце через насосные группы:
✅ Для прямого подключения с температурой котла заказывайте: NGSS-20 ;
✅ Для автоматической регулировки температуры заказывайте: NGSS-20C ;
✅ Для небольшого кол-ва радиаторов ( уточняется в проекте ) с ручной регулировкой температуры заказывайте: NGSS-20CTS (35-60°С) . - Теплые полы следует подключать после радиаторов по потоку теплоносителя с помощью смесительных насосных групп:
✅ Для автоматической регулировки температуры заказывайте NGSS-20C ;
✅ Для классической конструкции теплых полов до 100 м² ( уточняется в проекте ) с ручной регулировкой заказывайте: NGSS-20CTS (20-43°С) ;
✅ Для толстых стяжек, отопления только полами или для фундаментов УШП с ручной регулировкой температуры заказывайте: NGSS-20CTS (35-60°С) .
Особенности подключения бокового контура к кольцевому коллектору RMSS-40-2 3/4″
В связи с остаточным гидравлически подпором со стороны котлового насоса к боковому контуру запрещено подключать прямой потребитель низкого сопротивления (бойлер, короткую радиаторную сеть).
Подробности подключения контура можно узнать у Владимира Сухорукова, посмотрев полторы минуты видео начиная с 14 минуты .

Основные характеристики

- Удобный процесс разметки с помощью лазера!
- Быстрый монтаж!
- Экономия пространства котельной!

- Матовый корпус позволяет снизить вероятность появления царапин в процессе монтажа и жирных следов.
- Резьбы и торцы с зеркальной поверхностью дополняют серебряным блеском.

- Регулировка вылета оси трубопроводов от стены для исключении лишних соединений подводки.
- Выравнивание изделия вертикально в боковой плоскости даже на неровной стене.
- Точное вертикальное позиционирование по размеченной оси трубопровода на стене даже при смещении бура в пустотелом кирпиче.
- Выставление изделия в горизонте или по проектному уклону.


- Изделия GIDRUSS абсолютно симметричны и соосны,
- Котел можно располагать слева и справа
- Можно разворачивать изделие по горизонтальной оси для изменеия направления подводки (продукция с окончанием на "-D") и порядок подачи и обратки потребителей (продукция с окончанием на "-DU").
Наличие у дилеров 27


































































